Wiltingelaan 12

9591 DA Onstwedde

92 m2 4

279.000 K.K.

Deel dit object:

  Omschrijving

Centraal in het dorp staat deze in 1991 nieuw gebouwde halfvrijstaande woning met een vrijstaande stenen garage en een besloten onderhoudsvriendelijk aangelegde tuin op een perceel van 258m².

Indeling:
Begane grond: hal met zij-entree, meterkast en trapopgang; toiletruimte met wandcloset en fonteintje; L-vormige woonkamer (ca. 27m²); woonkeuken (ca. 10.5m²) met een inbouwkeuken in hoekopstelling v.v. diverse apparatuur (o.a. elektrisch fornuis met oven, afzuigkap, koelkast en vaatwasser); bijkeuken met achter-entree, witgoedaansluitingen en vaste kast.
Verdieping: overloop; 3 slaapkamers (ca. 7.2m², 8.8m² en 14.5m²); badkamer met ligbad, douchecabine, wastafel en 2e toilet (wandcloset).
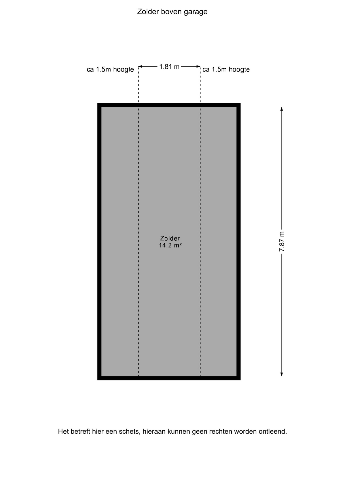
2e Verdieping: middels vlizotrap bereikbare zolderberging.

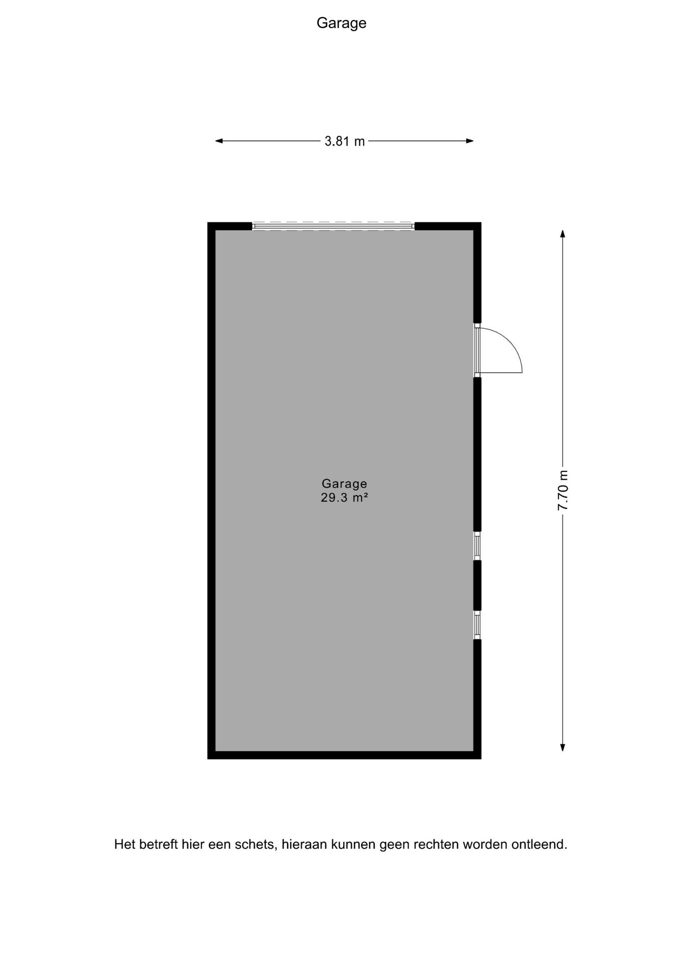
- de vrijstaande garage (ca. 29m²) met een breedte van 3.8m en een diepte van 7.7m beschikt over een ruime zolderverdieping met stahoogte (1.9m) in de nok welke middels een vaste trap bereikbaar is.
- verwarming middels CV (Nefit HR combiketel, bouwjaar 2009).
- buitenom geschilderd in 2022.
- muur-/dak-/vloerisolatie, energielabel C.

Omgeving:
In Onstwedde zijn diverse winkels, er is een peuterschool, een basisschool en er is voortgezet onderwijs ook zijn er diverse sportverenigingen, voetbalvelden, tennisbanen en een (openlucht) zwembad. Voor uitgebreide voorzieningen zijn de plaatsen Stadskanaal, Winschoten en Veendam allen op redelijk korte afstand gelegen. Het dorp ligt in een schitterende (groene) omgeving met veel natuur-/en bosgebieden nabij.

  Kenmerken

Overdracht

Status:
Onder bod
Vraagprijs:
279.000 K.K.
Aanvaarding:
in overleg

Bouwvorm

Bouwjaar:
1991
Bouwvorm:
bestaande bouw

Indeling

Woonoppervlakte:
92 m2
Perceeloppervlakte:
258 m2
Inhoud:
327 m3
Aantal kamers:
4
Aantal slaapkamers:
3

Energie

Bouwjaar:
2009
Warmwater:
cv ketel

Buitenruimte

Tuin:
achtertuin: normaal, voortuin: normaal, zijtuin: normaal,

Voorzieningen

Soort:
mechanische ventilatie, tv kabel, dakraam,
Energie Label:
C

  Kaart

 Foto's

 Plattegrond woning