Holte 68

9591 VR Onstwedde

105 m2 4

275.000 K.K.

Deel dit object:

  Omschrijving

In het rustige buurtschap Holte staat deze uitgebouwde en keurig onderhouden semibungalow met vrijstaande garage, gelegen op een perceel van ruim 500 m² eigen grond. De woning is omstreeks 2013 verbouwd en daarbij voorzien van onder andere een nieuwe badkamer en keuken. Dankzij de uitbouw beschikt de woning over een prettig woonprogramma op de begane grond, terwijl de verdieping voldoende ruimte biedt voor twee slaapkamers.

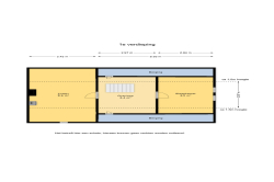
Indeling: hal/entree met meterkast en trapopgang; toiletruimte; woonkamer met gashaard; lichte eetkamer met openslaande tuindeuren; halfopen keuken met keukenblok in hoekopstelling voorzien van diverse inbouwapparatuur; bergruimte (ook geschikt als wasruimte); kelderkast; fraaie badkamer met inloopdouche, wandcloset, wastafelmeubel en witgoedaansluitingen; slaapkamer 1; slaapkamer 2/kantoor.
1e verdieping: overloop met bergruimte achter de knieschotten; slaapkamer 3; zolderberging met cv-opstelling.

- Levensloopbestendige woning met relatief veel leefruimte op de begane grond.
- Voorzien van diverse isolatievoorzieningen, waaronder grotendeels HR++-beglazing, spouwmuurisolatie en vloerisolatie.
- Omstreeks 2013 uitgebouwd en voorzien van een nieuwe badkamer en keuken.
- Verwarming middels cv-ketel (Remeha, bouwjaar 2013).
- Mogelijkheid om de zolderberging te verbouwen tot extra slaapkamer.
- Vrijstaande garage met kanteldeur (ca. 24 m²).

Omgeving:
De woning ligt in het buurtschap Holte, direct nabij Onstwedde. Een rustige, landelijke omgeving met circa 150 inwoners, gelegen op de Onstwedder Holte — een oude keileembult en met ruim 11 meter de hoogste natuurlijke heuvel van Groningen.

In Onstwedde zijn diverse voorzieningen aanwezig, waaronder winkels, een peuterschool, basisschool en voortgezet onderwijs. Daarnaast zijn er meerdere sportverenigingen, voetbalvelden, tennisbanen en een openluchtzwembad. Voor uitgebreidere voorzieningen liggen Stadskanaal, Winschoten en Veendam op korte afstand.

  Kenmerken

Overdracht

Status:
Verkocht onder voorbehoud
Vraagprijs:
275.000 K.K.
Aanvaarding:
in overleg

Bouwvorm

Bouwjaar:
1965
Bouwvorm:
bestaande bouw

Indeling

Woonoppervlakte:
105 m2
Perceeloppervlakte:
502 m2
Inhoud:
442 m3
Aantal kamers:
4
Aantal slaapkamers:
3

Energie

Bouwjaar:
2013
Warmwater:
cv ketel

Buitenruimte

Tuin:
tuin rondom: verzorgd,

Voorzieningen

Soort:
Energie Label:
C

  Kaart

 Foto's

 Plattegrond woning